STD (Standart container / DD (Double end doors / OS (Open side doors) / PW (Pallet Wide) / RF (Refrigerated)
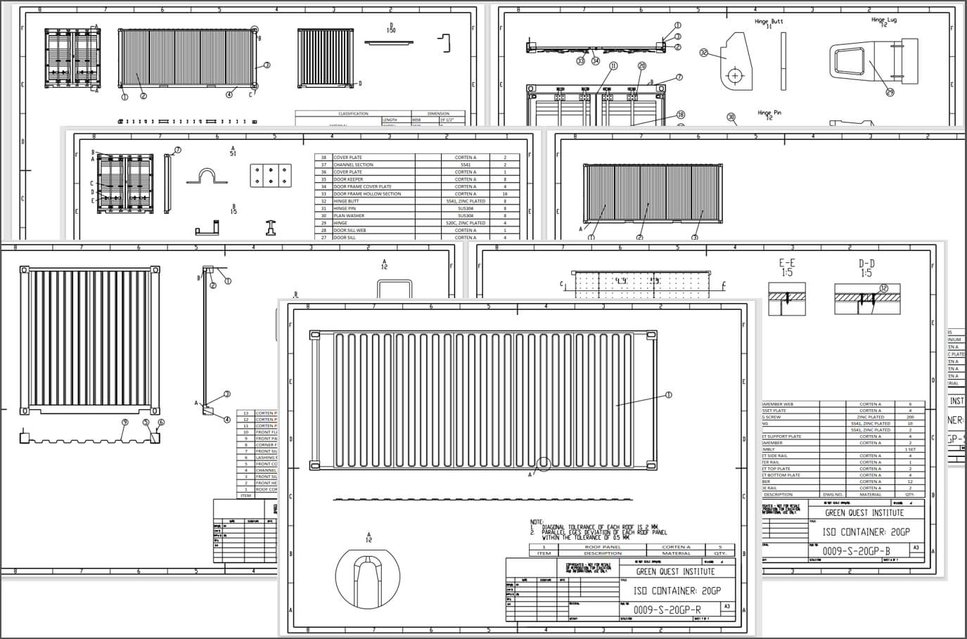
All 2D CAD container models include 7-9 pages of details, and supplemental ASTM engineering references and specifications for Finite Elemental Analysis (FEA).